
Tip ta 'HD Skrejjen ta' l-Elettriku Uniku ta 'l-Ewropa Overhead Crane
Il-Crane ta 'Overhead Girder Uniku Ewropew huwa makkinarju kumpatt ta' l-irfigħ iddisinjat u l-manifattura f'konformità stretta ma 'l-istandard FEM u DIN, li b'teknoloġija avvanzata u disinn sbieħ. Divided f'tip ġenerali u tip ta 'sospensjoni, li jappoġġja l-użu ta' parank ta 'l-elettriku standard Ewropew, adattat għal manutenzjoni ta' workshop u maħżen, assemblaġġ ta 'preċiżjoni ta' partijiet kbar u postijiet oħra.
Tip ta 'HD Skrejjen ta' l-Elettriku Uniku ta 'l-Ewropa Overhead Crane
Deskrizzjoni qasira:
Il-Crane ta 'Overhead Girder Uniku Ewropew huwa makkinarju kumpatt ta' l-irfigħ iddisinjat u l-manifattura f'konformità stretta ma 'l-istandard FEM u DIN, li b'teknoloġija avvanzata u disinn sbieħ. Divided f'tip ġenerali u tip ta 'sospensjoni, li jappoġġja l-użu ta' parank ta 'l-elettriku standard Ewropew, adattat għal manutenzjoni ta' workshop u maħżen, assemblaġġ ta 'preċiżjoni ta' partijiet kbar u postijiet oħra.

Jista 'jintuża b'mod wiesa' fil-manifattura tal-makkinarju, metallurġija, pitrolju, petrifaction, port, ferrovija, avjazzjoni ċivili, ikel, karta li tagħmel, kostruzzjoni, industriji tal-elettronika f'ħanut tax-xogħol, maħżen u sitwazzjonijiet oħra ta ' applikati għall-immaniġġjar tal-materjal li jeħtieġu pożizzjonament preċiż, komponenti kbar sitwazzjoni ta 'mmuntar preċiża.

Stampi dettaljati:

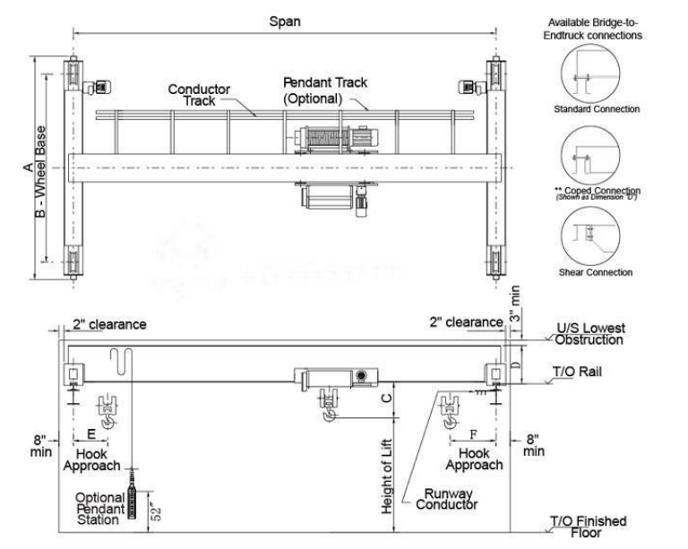
Disinn tal-Iskeċċ:

Parametri Tekniċi:
Span | m | 7.5 | 10.5 | 13.5 | 16.5 | 19.5 | 22.5 | 25.5 |
Kapaċità | t | 1 ~ 12.5t | ||||||
Piż totali | kg | 1781 ~ 12086 | ||||||
Piż tat-troli | kg | 405 ~ 740 | ||||||
Max. Tagħbija bir-rota | kn | 13.5 ~ 90.94 | ||||||
Ferrovija tal-vjaġġ | P24 ~ P43 | |||||||
Veloċità ta 'rfigħ | m / min | 0.8 / 5 | 0.8 / 5 | 0.8 / 5 | 0.8 / 5 | 0.8 / 5 | 0.8 / 5 | 0.8 / 5 |
Għoli ta 'rfigħ | m | ≥ 6 | ≥ 6 | ≥ 6 | ≥ 6 | ≥ 6 | ≥ 6 | ≥ 6 |
Il-qawwa totali tal-mutur | kw | 4.31 | 4.31 | 4.31 | 4.31 | 4.67 | 4.67 | 4.67 |
Veloċità tal-krejn | m / min | 3-30 | 3-30 | 3-30 | 3-30 | 3-30 | 3-30 | 3-30 |
Veloċità tat-tròli | m / min | 2-20 | 2-20 | 2-20 | 2-20 | 2-20 | 2-20 | 2-20 |
Dazju tax-xogħol | M5 / A5 | |||||||


English
Čeština
hrvatski
עברית
Nederlands
Lietuvių
ไทย
tlhIngan
Français
Cymraeg
فارسی
Melayu





